Купить элитную квартиру, Россия, Московская область, г.о. Щёлково, Новая Фабрика, 10
ID 12270318
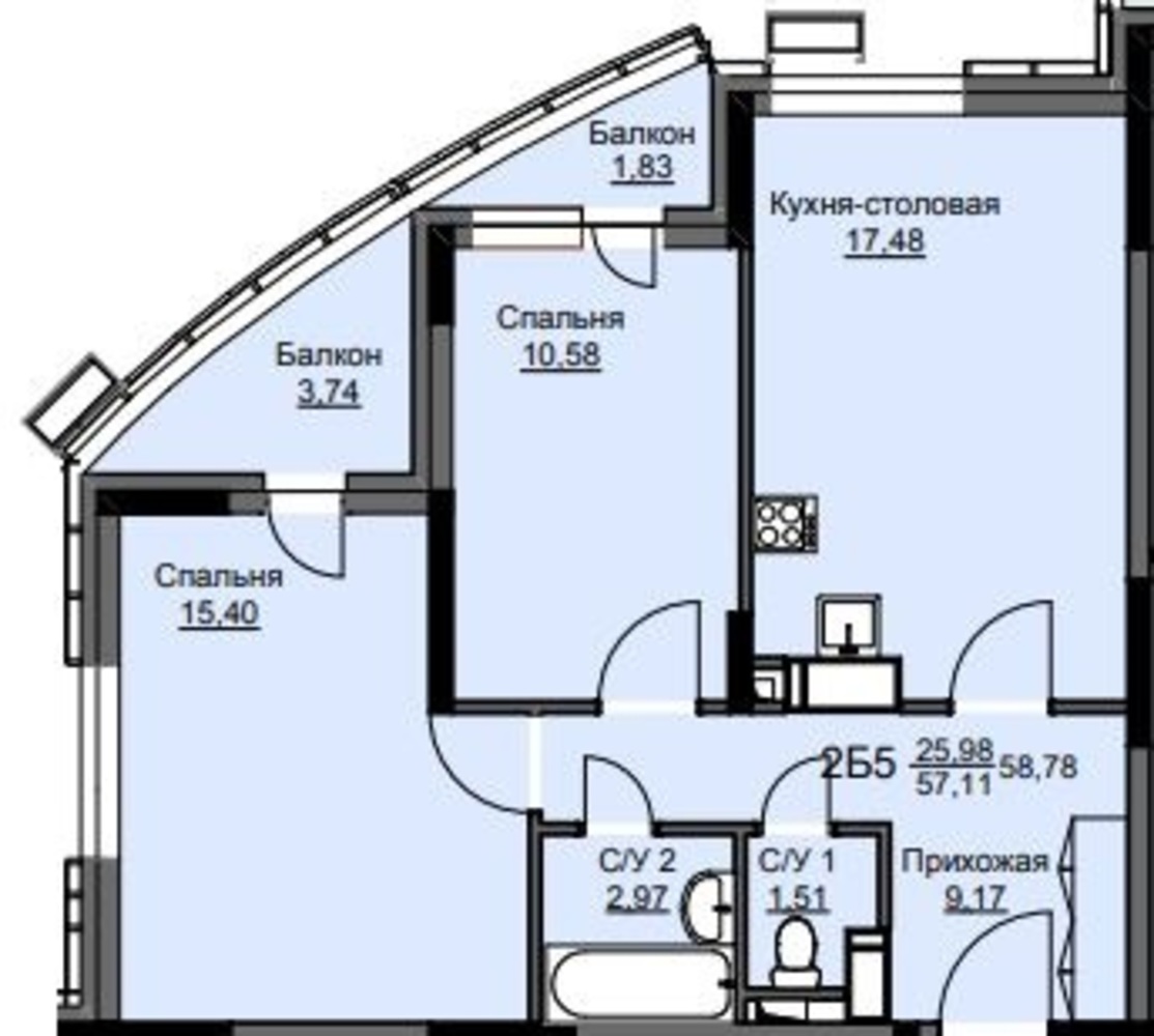
59.2 м2
2 комнатная квартира
16/17
|
10 656 000 руб.
|
Тип предложения2 комнатная квартира
Общая площадь59.2 м2
Общая стоимость10 656 000 руб.
Этаж16
Этажность17
Год постройки2025
Продается 2-х комнатная квартира комфорт-класса с полностью готовой отделкой, площадью 59.2 кв.м в доме №10 ЖК Соболевка, который расположен в городской черте развитого подмосковного городского округа Щёлково рядом с парковой зоной.





