Купить элитную квартиру, Россия, Московская область, г.о. Щёлково, Новая Фабрика, 10
ID 12270322
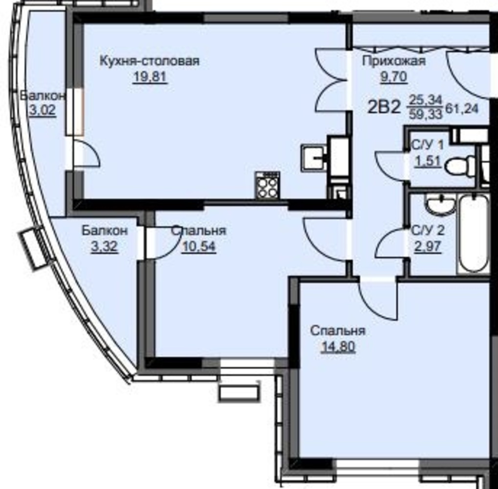
62.0 м2
2 комнатная квартира
17/17
|
11 160 000 руб.
|
Тип предложения2 комнатная квартира
Общая площадь62.0 м2
Общая стоимость11 160 000 руб.
Этаж17
Этажность17
Год постройки2025
Продается 2-х комнатная квартира комфорт-класса, площадью 62 кв.м в доме №10 ЖК Соболевка, который расположен в городской черте развитого подмосковного городского округа Щёлково рядом с парковой зоной.





