Купить элитную квартиру, Россия, Московская область, г.о. Щёлково, Новая Фабрика, №12
ID 12270246
60.2 м2
2 комнатная квартира
14/17
|
9 632 000 руб.
|
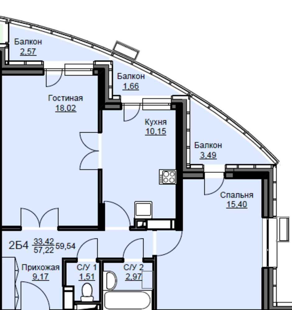
Тип предложения2 комнатная квартира
Общая площадь60.2 м2
Общая стоимость9 632 000 руб.
Этаж14
Этажность17
Год постройки2024
Площадь кухни10.15 м2
Санузелраздельный
Продается 2-х комнатная квартира комфорт-класса №264 на 14-ом этаже дома №12 в ЖК «Соболевка », который расположен в городской черте развитого подмосковного городского округа Щёлково рядом с парковой зоной, в излучине реки на правом берегу Клязьмы. Соболевка-парк объединяет в себе три важнейших составляющих хорошего жилья: качество, комфорт и доступность. Изюминкой нашего жилого комплекса является идеальная гармония площади квартир и их планировки. Площадь: 60,2 кв.м.





