Купить элитную квартиру, Россия, Московская область, г.о. Щёлково, Новая Фабрика, №12
ID 12270239
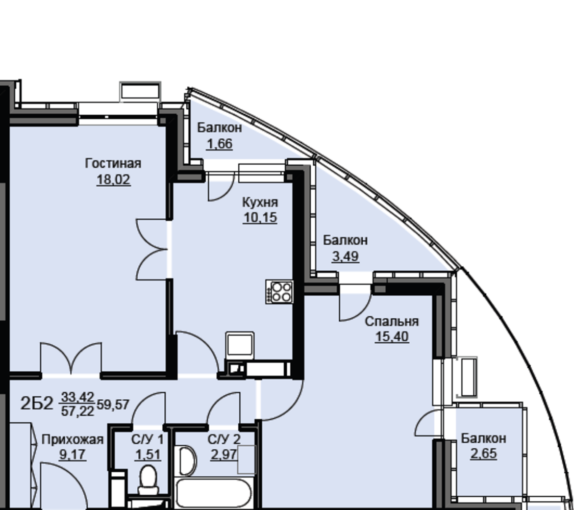
60.4 м2
2 комнатная квартира
8/17
|
9 664 000 руб.
|
Тип предложения2 комнатная квартира
Общая площадь60.4 м2
Общая стоимость9 664 000 руб.
Этаж8
Этажность17
Год постройки2024
Площадь кухни10.15 м2
Санузелраздельный
Продается 2-х комнатная квартира комфорт-класса №210 на 8-ом этаже дома №12 в ЖК «Соболевка», который расположен в городской черте развитого подмосковного городского округа Щёлково рядом с парковой зоной, в излучине реки на правом берегу Клязьмы. Соболевка-парк объединяет в себе три важнейших составляющих хорошего жилья: качество, комфорт и доступность. Изюминкой нашего жилого комплекса является идеальная гармония площади квартир и их планировки. Площадь: 60,4 кв.м.





