Купить элитную квартиру, Россия, Москва, Москва, Нежинская ул., д. 1к2
ID 12259402
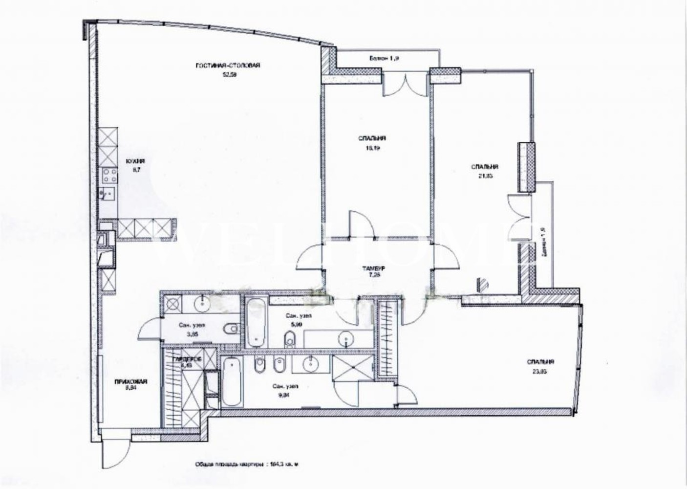
169.0 м2
4 комнатная квартира
22/30
|
145 080 400 руб.
|
ID объекта: G-1058. На продажу предлагается квартира под отделку в ЖК Кутузовская Ривьера, расположенная на 22 этаже жилого комплекса Кутузовская ривьера. Предусмотрено два варианта планировки, которые в зависимости от предпочтений будущих жильцов, позволяют организовать гостиную-кухню-столовую в едином пространстве, две-три спальни, два санузла, гардеробные, постирочную комнату. Из окон открывается вид на здания МГУ и МИДа. Высота потолков – 3 м. Расположенный в экологически чистом районе Западного округа Москвы, рядом с Кутузовским проспектом, в непосредственной близости от Волынского леса и реки Сетунь. Жилой комплекс состоит из четырех 30-этажных корпусов повышенной комфортности. В архитектуре применены оригинальные дизайнерские решения: панорамные окна, эксклюзивная отделка фасадов, уникальный дизайн общественных помещений.


