Купить элитную квартиру, Россия, Москва, Москва, Студенческая, д. 20
ID 12259429
109.0 м2
3 комнатная квартира
7/15
|
96 940 100 руб.
|
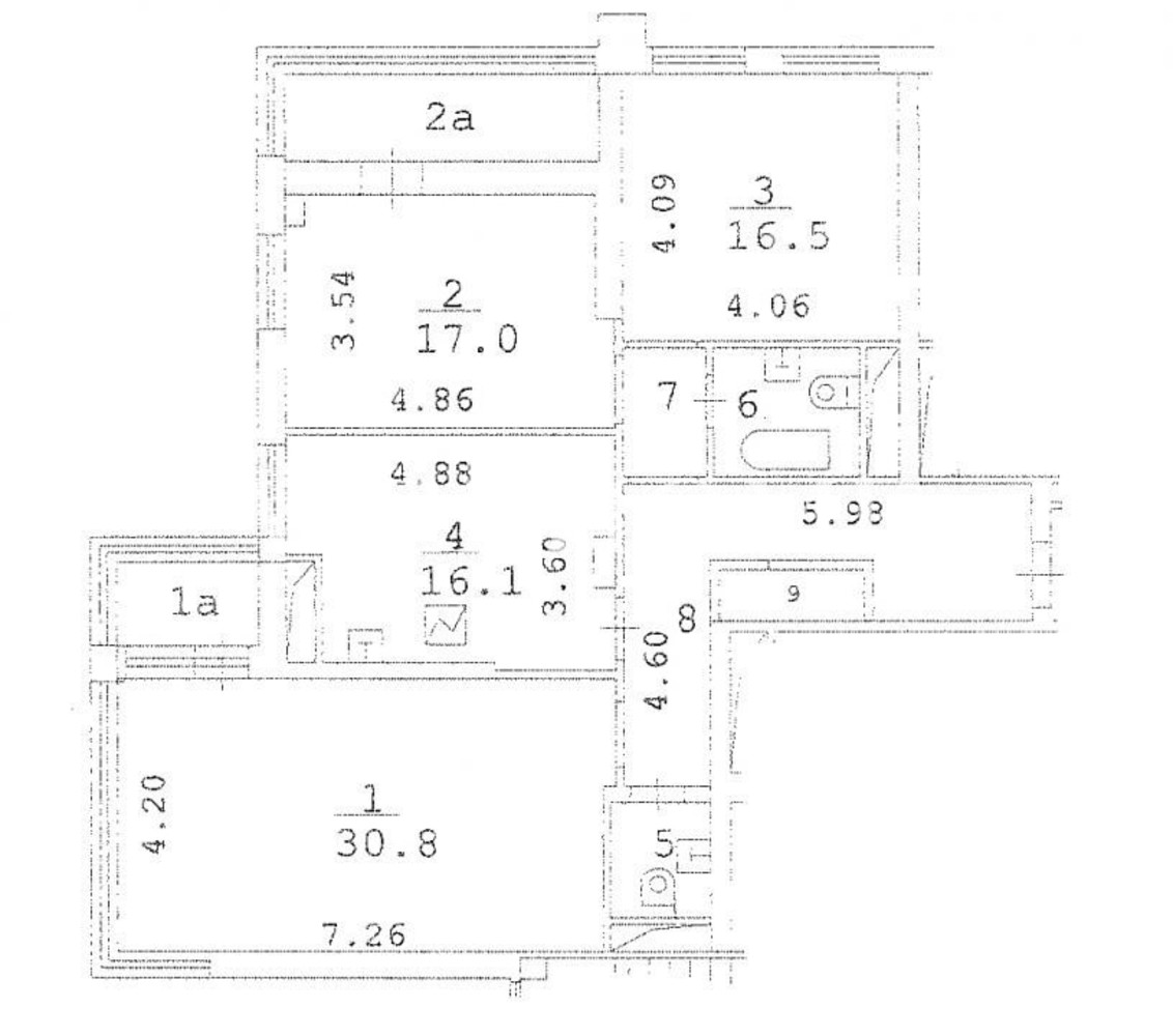
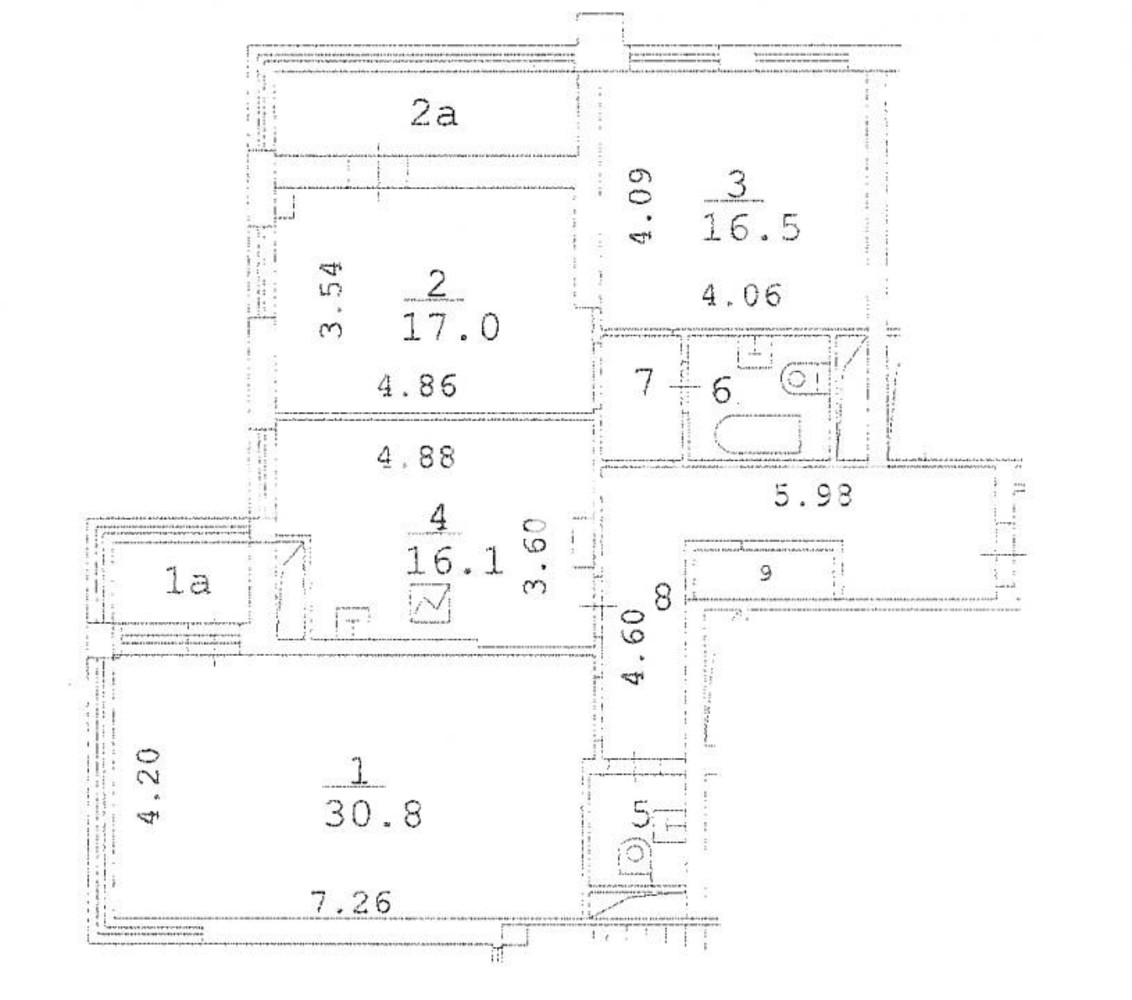
ID объекта: G-1406. На продажу предлагается квартира без отделки, свободной планировки, расположенная на 7 этаже в современном жилом комплексе на Студенческой, 20.Спланировать пространство можно следующим образом: кухня, гостиная, две спальни, два санузла, гардеробная комната. К квартире прилегают две лоджии.Высота потолков – 3 м.Отличный вид на три стороны: центр, Москву–реку и ММДЦ Москва-Сити.В подземном паркинге возможно приобретение или аренда любого количества машиномест.Новый жилой комплекс расположен в одном из самых лучших и наиболее престижных мест Москвы – на Кутузовском проспекте.Комплекс состоит из 2-х разноуровневых корпусов (15-ти этажный корпус «А» и 8-ми этажный корпус «Б»). Тип дома каркас-монолит, самонесущие кирпичные стены. Первые два этажа облицованы гранитом, остальные кирпичом в сочетании с натуральным камнем. Начиная с 7-ого этажа предусмотрен выход на открытую площадку.



