Купить элитную квартиру, Россия, Москва, ул. Нижние Мнёвники, земельный участок 62В, Ккорпус 6
ID 12273895
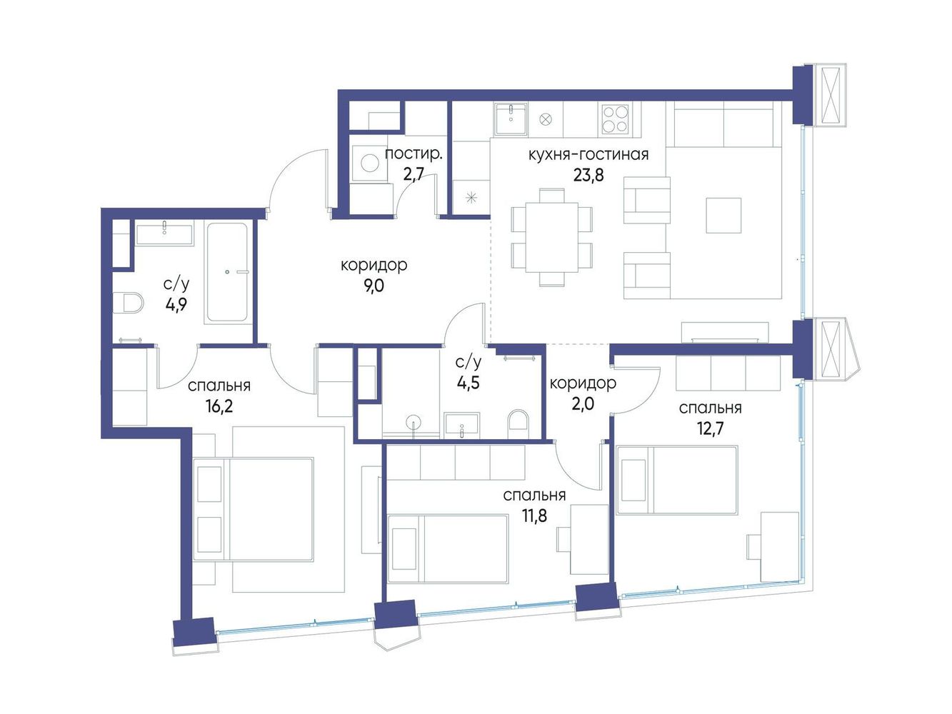
87.62 м2
3 комнатная квартира
11/24
|
49 932 000 руб.
|
Продаётся 3-комн. квартира от застройщика: общая площадь 87.62 м², жилая м², кухня м², 11-й этаж, жилой квартал «Остров 14», корпус 6 (секция 1). Срок сдачи: 2 квартал 2029 года. . Остров.14 ДОХОДНЫЙ ДОМ – ЧАСТЬ ПРОЕКТА «ОСТРОВ», В 10 МИНУТАХ ОТ МОСКВА-СИТИ, В 15 МИНУТАХ ЕЗДЫ ОТ САДОВОГО КОЛЬЦА. Квартиры с отделкой и мебелью, и с управлением "под ключ" Постоянный доход для инвесторов, отельный сервис для арендаторов Востребованные для аренды планировки: студии, 1- и 2-комнатные квартиры 28-64 м2 Полная комплектация квартир: отделка, мебель, бытовая техника, кондиционеры Постоянный поток арендаторов – 10 минут от Москва-Сити, 5 минут от метро «Мневники», самодостаточная инфраструктура в квартале и собственная клубная инфраструктура в доме, спортивный, рекреационный и деловой кластеры на территории ОСТРОВА






